
集团生产的Z540H、Z540Y、Z540W 型 PN16~PN160 钢制锥齿轮传动楔式闸阀:锥齿轮驱动、法兰毗连、明杆楔式弹性闸板,,,,阀座密封面质料为堆焊合金(Z540H-16C~160 Z540Y-16C~160 Z540Y-16I~160I Z540Y-16P~160P Z540Y-16R~160R)、不锈钢(Z540W-16P~160P Z540W-16R~160R),,,,公称压力 PN16~PN160,,,,阀体质料为碳素钢(Z540H-16C~160 Z540Y-16C~160)、铬钼合金钢(Z540Y-16I~160I)、不锈钢(Z540W-16P~160P Z540Y-16P~160P Z540W-16R~160R Z540Y-16R~160R)的闸阀。。。。
【产品用途】
集团生产的Z540H、Z540Y、Z540W 型 PN16~PN160 钢制锥齿轮传动楔式闸阀:锥齿轮驱动、法兰毗连、明杆楔式弹性闸板,,,,阀座密封面质料为堆焊合金(Z540H-16C~160 Z540Y-16C~160 Z540Y-16I~160I Z540Y-16P~160P Z540Y-16R~160R)、不锈钢(Z540W-16P~160P Z540W-16R~160R),,,,公称压力 PN16~PN160,,,,阀体质料为碳素钢(Z540H-16C~160 Z540Y-16C~160)、铬钼合金钢(Z540Y-16I~160I)、不锈钢(Z540W-16P~160P Z540Y-16P~160P Z540W-16R~160R Z540Y-16R~160R)的闸阀。。。。
【性能参数】
|
型号 |
PN |
事情压力/MPa |
使用温度/℃ |
适用介质 |
|
Z540H-16C-160 |
16-160 |
1.6-16.0 |
≤425 |
水、蒸汽、油品 |
|
Z540Y-16C-160 |
16-160 |
1.6-16.0 |
≤425 |
水、蒸汽、油品 |
|
Z540H-16I-160 |
16-160 |
1.6-16.0 |
≤550 |
蒸汽、油品 |
|
Z540W-16P-40P |
16-40 |
1.6-4.0 |
≤150 |
侵蚀性介质 |
|
Z540Y-16P-160P |
16-160 |
1.6-16.0 |
≤150 |
侵蚀性介质 |
|
Z540W-16R-40R |
16-40 |
1.6-4.0 |
≤150 |
侵蚀性介质 |
|
Z540Y-16R-160R |
16-160 |
1.6-16.0 |
≤150 |
侵蚀性介质 |
【主要零件质料】
|
型号 |
质料 |
|||
|
阀体、阀盖、闸板 |
阀杆 |
密封面 |
填料 |
|
|
Z540H-16C-160 |
碳素钢 |
铬不锈钢 |
堆焊铁基合金 |
柔性石墨 |
|
Z540Y-16C-160 |
碳素钢 |
铬不锈钢 |
堆焊硬质合金 |
柔性石墨 |
|
Z540H-16I-160 |
铬钼钢 |
铬钼钢 |
堆焊硬质合金 |
石墨盘根 |
|
Z540W-16P-40P |
铬镍钼钛不锈钢 |
铬镍钼钛不锈钢 |
堆焊硬质合金 |
聚四氟乙烯 |
|
Z540Y-16P-160P |
铬镍钼钛不锈钢 |
铬镍钼钛不锈钢 |
堆焊硬质合金 |
聚四氟乙烯 |
|
Z540W-16R-40R |
铬镍钼钛不锈钢 |
铬镍钼钛不锈钢 |
堆焊硬质合金 |
聚四氟乙烯 |
|
Z540Y-16R-160R |
铬镍钼钛不锈钢 |
铬镍钼钛不锈钢 |
堆焊硬质合金 |
聚四氟乙烯 |
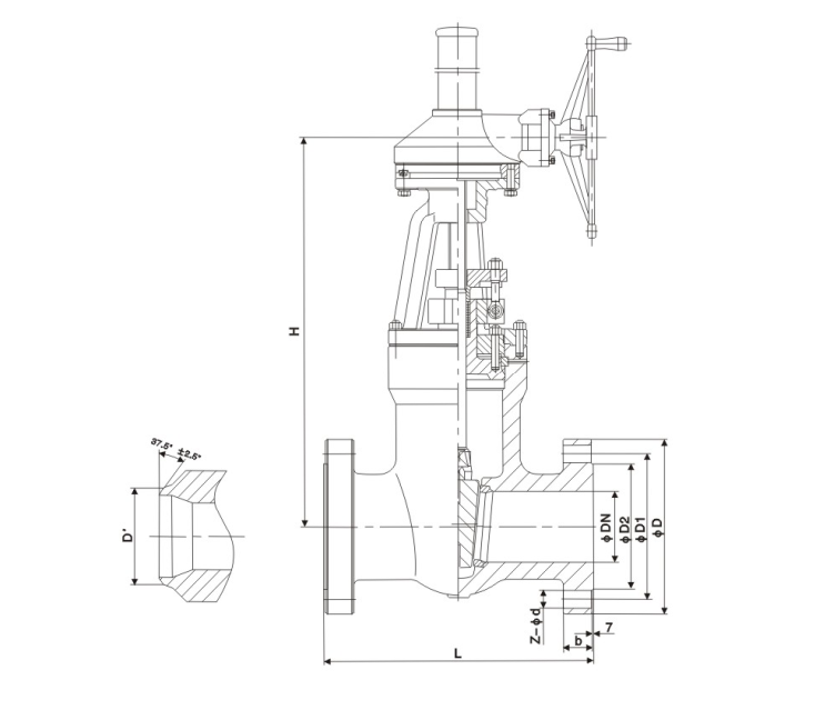
【主要形状和毗连尺寸】
|
公称通径 |
主要形状尺寸和毗连尺寸 |
|||||||
|
L |
D |
D1 |
D2 |
b |
Z-d |
H |
||
|
Z540H-16C |
||||||||
|
200 |
400 |
335 |
295 |
265 |
26-3 |
12-Φ23 |
730 |
|
|
250 |
450 |
405 |
355 |
320 |
30-3 |
12-Φ25 |
897 |
|
|
300 |
500 |
460 |
410 |
375 |
30-3 |
12-Φ25 |
1032 |
|
|
350 |
550 |
520 |
470 |
435 |
34-4 |
16-Φ25 |
1170 |
|
|
400 |
600 |
580 |
525 |
485 |
36-4 |
16-Φ30 |
1330 |
|
|
450 |
650 |
640 |
585 |
545 |
40-4 |
20-Φ30 |
1541 |
|
|
500 |
700 |
705 |
650 |
608 |
44-4 |
20-Φ34 |
1676 |
|
|
600 |
800 |
840 |
770 |
718 |
48-5 |
20-Φ36 |
1874 |
|
|
700 |
900 |
910 |
840 |
788 |
50-5 |
24-Φ36 |
2083 |
|
|
800 |
1000 |
1020 |
950 |
898 |
52-5 |
24-Φ41 |
2400 |
|
|
Z540H-25 |
||||||||
|
200 |
400 |
360 |
310 |
278 |
34-3 |
12-Φ25 |
730 |
|
|
250 |
450 |
425 |
370 |
332 |
36-3 |
12-Φ30 |
897 |
|
|
300 |
500 |
485 |
430 |
390 |
40-4 |
16-Φ30 |
1032 |
|
|
350 |
550 |
550 |
490 |
448 |
44-4 |
16-Φ34 |
1170 |
|
|
400 |
600 |
610 |
550 |
505 |
48-4 |
16-Φ34 |
1330 |
|
|
450 |
650 |
660 |
600 |
555 |
50-4 |
20-Φ34 |
1541 |
|
|
500 |
700 |
730 |
660 |
610 |
52-4 |
20-Φ36 |
1676 |
|
|
600 |
800 |
840 |
770 |
718 |
56-5 |
20-Φ41 |
1874 |
|
|
700 |
900 |
955 |
875 |
815 |
60-5 |
24-Φ42 |
2083 |
|
|
800 |
1000 |
1070 |
990 |
930 |
64-5 |
24-Φ48 |
2400 |
|
【结构图片】

